judith benzer architektur: summer house in southern burgenland

'summer house in southern burgenland' by judith benzer architektur, oberbergen, austria
image © martin weiß
all images courtesy of judith benzer architektur
wien-based practice judith benzer architekturhave completed the 'summer house in southern burgenland', a retreat residence
in the countryside of oberbergen, austria. surfaced with untreated larch planks, the external faces of this dwelling may be closed
during winter months becoming an unobtrusive silhouette in the landscape. typical of the region, the volume's exterior appearance
is derived from the 'kellerstöckel' or 'wine house'. the two-level structure with rooms for residential use are enclosed with
a strictly wooden framework while the sub-grade cellar for wine production and storage is formed with ferroconcrete
massive construction.
flush within the facade, large shutters may be folded open into a line of canopies to prevent overheating. sharp lines are produced
at the edges of the home with copper corner plates. the outline of the outdoor terrace mimics the building form, acting as
a shadow along the ground plane.

larch shutters close off the facade from the outside environment
image © martin weiß

shutters open to reveal band of windows, front door remains concealed
image © martin weiß

shutters open to form canopies
image © martin weiß

image © martin weiß

facade detail
image © martin weiß

driveway
image © martin weiß

kitchen and dining area
image © martin weiß

stair to upper level
image © martin weiß

entry corridor
image © martin weiß

bedroom
image © martin weiß

bathroom
image © martin weiß

side view

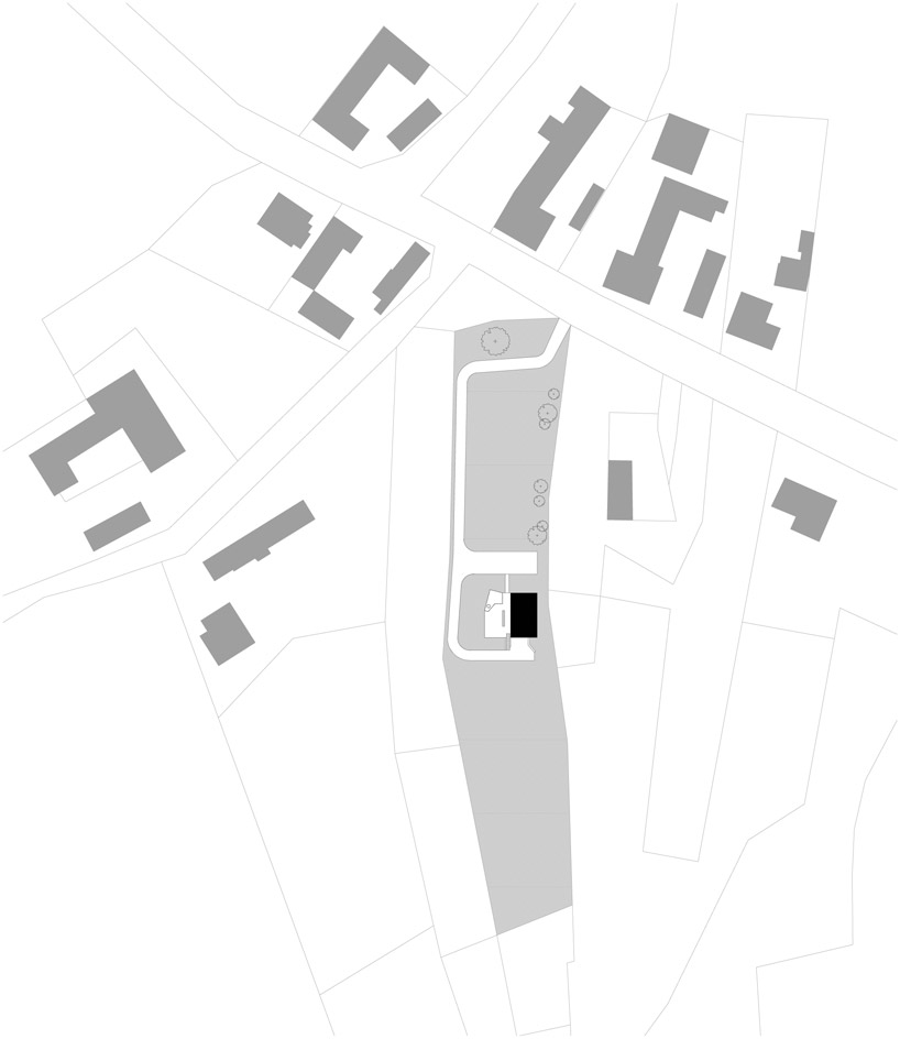
site plan

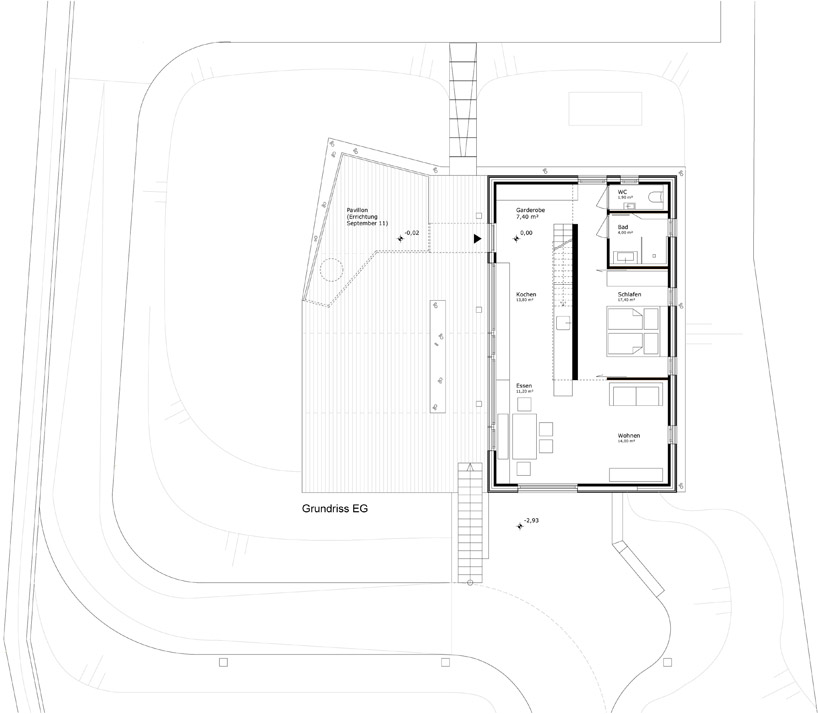
floor plan / level 0

floor plan / level 1

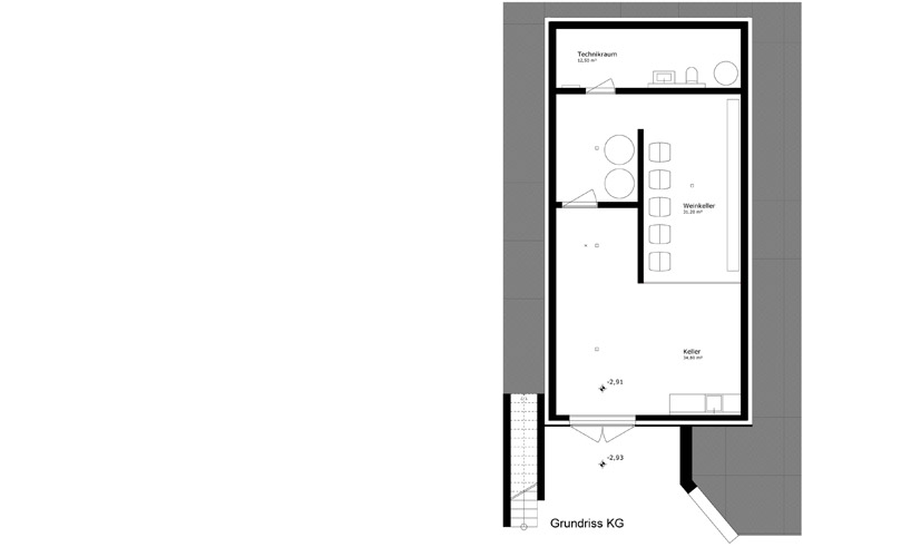
floor plan / level -1

section

elevation

elevation

elevation

elevation
0 件のコメント :
コメントを投稿